Compared to other racket sports, the main rules in badminton are few. Once you know them, you can step confidently onto the court and challenge opponents, should they violate a rule. To do that, you
should learn how scoring works, what a 'legal serve' means, and what actions are considered faults or lets. Understanding these rules makes it easier to play while avoiding common beginner mistakes.
| 🏸Aspect of play | 👆Rule |
|---|---|
| Court layout and size | Singles width: 5.18 m Doubles width: 6.1 m Court length: 13.4 m Net height: 1.55 m, with a dip to 1.524 m allowed in the centre. |
| Serving | Shuttle must pass over the opponent's service line. Serves are delivered diagonally. Server stands in their right service court when score is even. They stand in their left court when the score is odd. Server loses their serve when they lose the rally. |
| Scoring | Points to win: 21 A match: 3 games. Match winner: best of 3 games. Game winners serve first on the next game. |
| Lets | An interruption in play. May be something landing on the court or the birdie hitting the ceiling. May also be the receiver not ready for a serve. |
| Faults | The shuttle hitting the net. The serve not crossing the opponent's service line. The shuttle landing out of bounds. |
| Singles play | A player must win by two points if the score reaches 20-20. |
| Doubles play | Players must swap positions if they win the rally. |
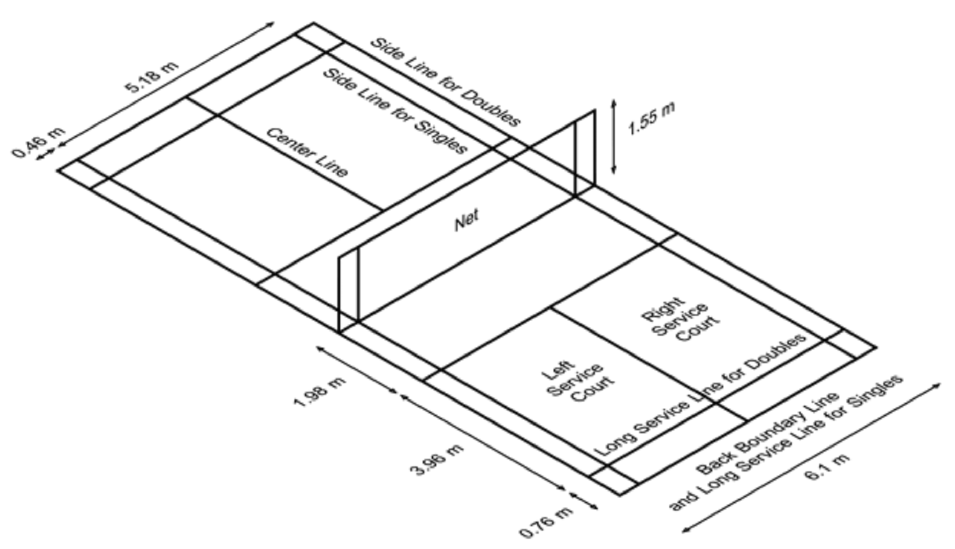
Basic Rules of Badminton: Court Layout and Boundaries
When you start your badminton lessons, you will likely do so at a club or other sports facility. There, you'll find the floors marked with lines of many colours. Some mark boundaries for basketball and/or pickleball, the hot new racket sport taking the world by storm. This is true whether you're practising on an outdoor court or one indoors.

Should your training facility not have dedicated badminton courts, some of those lines mark the court boundaries for your sport. You'll note from this picture that the court layout looks a bit like a tennis court, but the court's dividing line doesn't run the full length of the court.
The player wearing red is standing on the service line. That's the line the shuttlecock must pass when it's served, not where players serve from. The centre line divides each playing area, and the two lines that run the length of the court represent the sidelines for singles and doubles play.
The two lines farthest from the net, at the bottom of the court, mark the space's bottom boundaries. Upon your first lesson, your badminton coach will instruct you which lines you must pay attention to. Still, this all sounds very confusing. This graphic will add some clarity.

Now, with all the court's lines identified, you need to know about the court's overall dimensions.
- Overall court length: 13.4 metres
- Service line: 1.98 metres from the net
- Net height: 1.55 metres at the posts; 1.524 metres at the centre
Court width and serve line length depend on whether you're playing doubles or singles. Those dimensions are:
Width: 6.1 metres
Serve line length: 5.18 metres
Width: 5.18 metres
Serve line length: 6.1 metres
Badminton players don't necessarily need to know these dimensions. In time and with practice, you'll get used to what it feels like to bat the shuttlecock seven or more metres. That's the distance needed to clear your opponent's service line from your serve line.
Besides, you have no control over court dimensions unless you're setting up your own court. So let's move on to the basic badminton rules that do affect your play.
Badminton Play Rules on Serving
Some players contend that, in badminton, the serve is everything. Many beginners like to toss the birdie in the air and smash it into their opponents' court. Others hold the shuttle at shoulder height and drop it onto their racket, using various gripping techniques to ensure a powerful serve.
According to the Badminton World Federation (BWF) handbook, both of those serves are illegal. During the serve, the shuttle must be no more than 1.15 metres above the court's surface. In fact, the rules specify that the entire shuttle must be no higher than that.

It's not enough to make sure the shuttle's nose (the rubber end) is held low. Nor does that height indicate the point of contact where your racket meets the shuttle.
As a guideline, a person of average height can hold the shuttle sideways at their waist level to ensure compliance with this rule.
Let this clip demonstrate the proper serving technique.
Where to Stand
When serving, you must have both feet on the ground, and the shuttle must travel diagonally on the serve. So, if you're standing in your right service court, your opponent will stand in their right service court. When you serve from your left service court, you'll aim for your opponent's left service court.
If your score is even at the time of your serve (2, 4, 6, 8), you'll serve from the right service court.
If your score is odd at the time of your serve (3, 5, 7, 9), you'll serve from your left service court.
Once the serve is complete, players may move all over the court to return shots. In fact, they must - however, they shouldn't travel beyond their boundary lines. When your opponent hits the shuttle out of bounds, that's to your advantage.
Badminton Ground Rules for Singles and Doubles

All the rules that apply to singles' serves apply to doubles games.
Just a few differences mark doubles' serves from singles. If the serving side wins the rally, they get to continue serving. However, the serving player must switch to the other side of the court (right service area to left, for example) for the new serve. That's so each opponent has the chance to return the serve.
When playing doubles, when the serving pair wins the rally, the player who served the first time must serve again.
These badminton play rules for serving cover your first experiences on the court as a beginner player. You're not likely to start off playing doubles, though. Still, this is good information to keep tucked away for when you decide to expand your playing skills. Now, there's only one serving question left to answer.
The players spin a racket after calling 'up' or 'down'.
If the manufacturer's label faces up, that player decides whether to serve or receive.
In tournaments, officials decide who serves first with a coin toss.
Using the racket spin technique to decide who serves first suggests you must have a brand-name racket to spin. Getting familiar with the top racket brands for beginners will ensure you have a quality racket with a brand emblazoned on it.
Badminton Game Rules for Faults and Lets
One of the most confusing basic rules in badminton must the that the shuttle has to clear the service line on the serve. A serve is not considered valid if it lands in that 1.98 metre area just beyond the net.

A serve landing in that zone is considered a fault, and the player who made it will lose their serve. At least, in competition, that's the case. As a beginner player, your coach might forgive your shots falling short the first few times. All while encouraging you to study your badminton beginner's guide for proper serving techniques, of course.
Touching the net in any way is likewise considered a fault. Let's say you're serving and the shuttle fails to clear the net, or you hit it into the net. Such a fault will cost you your serve. What if, while playing, you brush up against the net, or your racket does?
Those too are faults, for which you will lose your chance at a point. Finally, hitting the shuttle out of bounds is a fault. As mentioned before, neither you nor your opponent has a duty to scramble to return a shot that's obviously beyond the court's boundary lines.
What is a Let?
A let describes something unforeseen. For example, imagine another coach and player on the court next to yours. As they volley, their shuttle goes wide, landing on your court. Such a happening will stop your rally, and you would call a let. No points are at risk, and your game resumes once the unexpected event is over.
Typically, badminton facilities have all the right aspects to play the game.
However, some older facilities may have lower ceilings than normal, causing some players to send their shuttles to the rafters. When this happens, that is also a let.
Finally, if your opponent serves when you're not ready to respond, that too is a let. Beware, though, that if you scramble to return the shuttle, the serve is considered valid. If you miss, that's a point for your opponent. This table summarises all the faults/lets you might experience, and their consequences.
| 🧩Condition | 🤔Fault or let? | 🔂What follows? |
|---|---|---|
| The shuttle hits the ceiling or a tree branch (if playing outdoors). | Let | The serving player serves again. Point status doesn't change. |
| The shuttle hits the net. | Fault | The opponent gets the serve. The opponent earns a point. |
| The fire alarm goes off while the game is underway. | Let | The serving player serves again. Point status doesn't change. |
| The shuttle lands in the service area. | Fault | The opponent gets the serve. The opponent earns a point. |
| The shuttle travels out of bounds. | Fault | The opponent gets the serve. The opponent earns a point. |
| A shuttle from the next court lands on your court. | Let | The serving player serves again. Point status doesn't change. |
| The server jumps to serve. | Fault | The opponent gets the serve. The opponent earns a point. |
| The server serves overhand | Fault | The opponent gets the serve. The opponent earns a point. |
| Somebody accidentally steps on your court. | Let | The serving player serves again. Point status doesn't change. |
| A player or their racket brushes up against the net. | Fault | The opponent gets the serve. The opponent earns a point. |
| A player not ready to return a serve. | Let | The serving player serves again. Point status doesn't change. |
What Are the Rules of Badminton for Scoring?
In bygone days, scoring badminton matches was an intricate process.
Today, the badminton scoring system is much simpler: every rally winner earns a point, and the game ends when one player or team reaches 21 points. A badminton match typically consists of three games. The winner claims the match after earning the most points in two out of the three games.

However, in badminton as in life, things are not always straightforward. Your opponent might be as skilled as you are, matching you point for point. What happens when the score is 20-20? Or even more impressive: 29-29? This chart lays out all the badminton scoring possibilities and what happens next.
| 🔎The rule | 🙋‍♂️What happens? |
|---|---|
| Old rules Currently being phased out. | Serve determined by coin toss. Men's games: played to 15 points. Women's games: played to 11 points. The server wins a point if they win the rally. |
| New rules Currently being implemented | First player to reach 21 wins the game. The player who wins best two out of three wins the match. |
| Players tie: 20-20 | The game continues until a player gains a 2-point lead. |
| Players tie: 29-29 | The player who wins the next point wins the game. |
| Doubles play A pair reaches 11 points. | The players switch court sides. (the right-side player takes the left position; the left-side player takes the right position) |
Note that the BWF has dabbled in rule changes since 2002, changing scoring rules three times between then and now. Under the current, simple scoring system, you could start winning matches as soon as you master the playing technique. That is, if you have all the right equipment to play badminton.
Summarise with AI:









